- Uccle
- Construit
- 620 m²
ADS
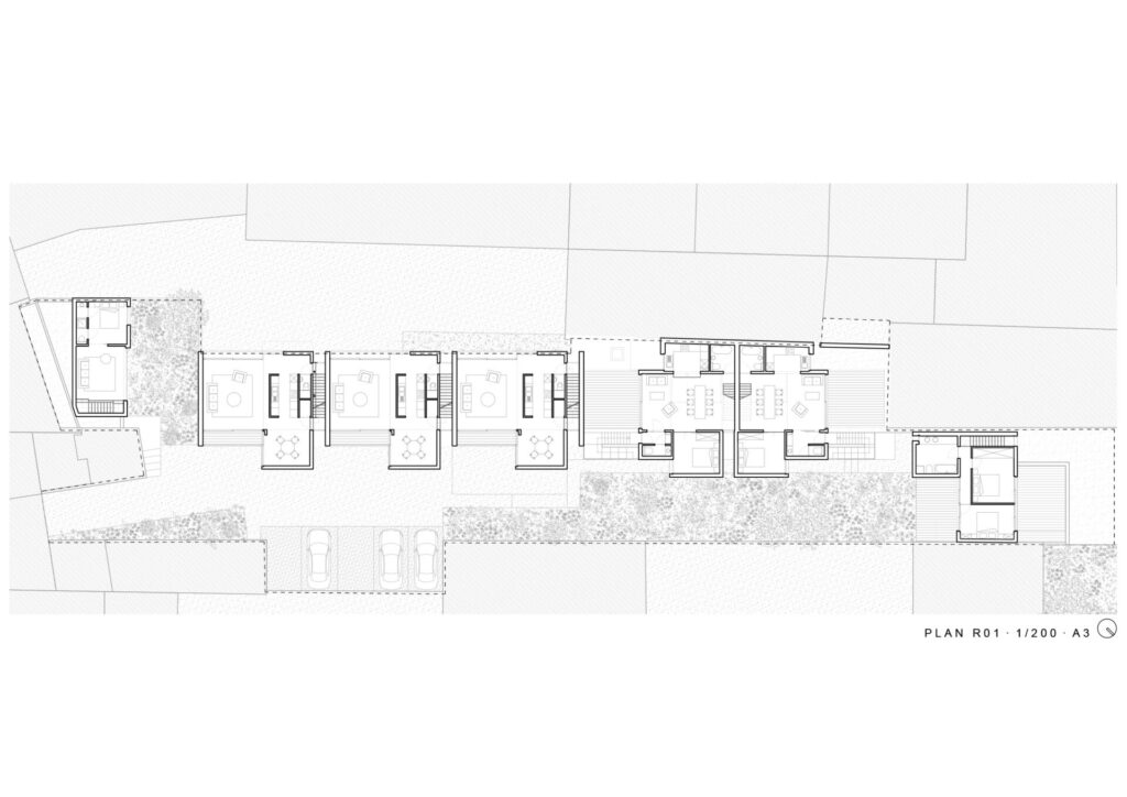
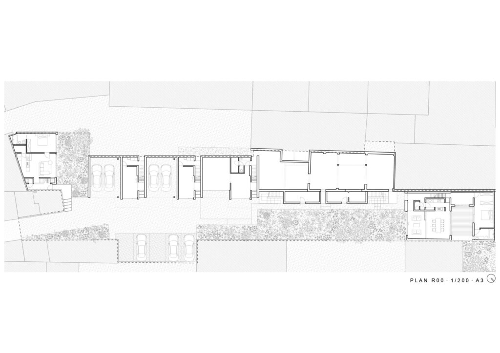
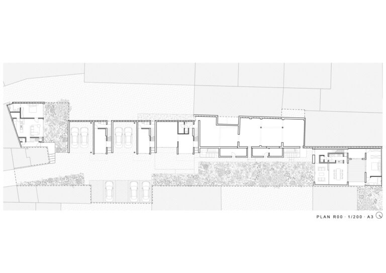
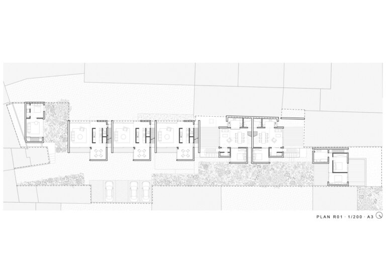
Reconversion d’un intérieur d’îlot en Habitats et ateliers
Le projet requalifie un long intérieur d’îlot à l’arrière de la chaussée d’Alsemberg, anciennement occupé par les entrepôts de la boulangerie Van Eeckhoudt et des garages laissés à l’abandon. Sur plus de 80 mètres de profondeur, les volumes existants sont transformés et complétés pour accueillir sept logements unifamiliaux, un atelier, des espaces de professions libérales et un jardin commun.
Une composition en peigne, entre mitoyens, ouvre des cours et des terrasses qui amènent le soleil au cœur des logements et protègent les espaces extérieurs des vues directes. Le parking sauvage laisse place à un socle planté: les voitures s’arrêtent en entrée de parcelle, le reste du site devient jardin partagé. La démarche s’appuie sur une forte concertation avec le voisinage, qui a conduit à ajuster vues, cours et répartitions de terrasses, et a déclenché la rénovation de plusieurs façades voisines. L’éco-construction se traduit par une ossature bois, des isolants en flocons de papier recyclé, la récupération d’eau de pluie et une végétalisation des garde-corps et jardins, qui réintroduisent de la biodiversité dans l’îlot.