- Waterloo
- Construit
- 500 m²
BRICMAN
MAISON UNIFAMILIALE
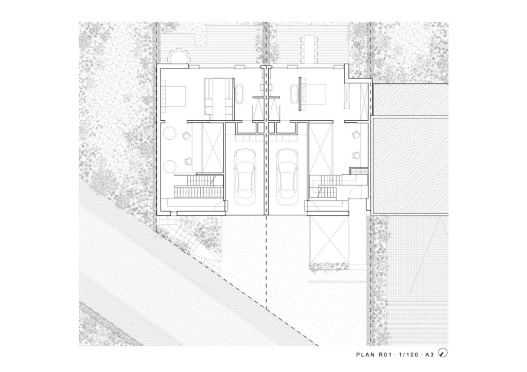
Côté rue, le bâtiment vient s’implanter dans la continuité et l’alignement du front bâti des maisons mitoyennes voisines présentant une grande variété de typologies. Le gabarit se conforme à l’ensemble de ces maisons, souvent de type pavillonnaire, R+1 et vient fermer, comme un about, l’ordre continu des habitations voisines.
Bien que le programme prévoie d’installer deux familles dans la maison, celle-ci présente une volumétrie unie assez particulière. En effet, le terrain ayant une forte déclivité, la construction gagne un étage côté jardin (R+2) et semble glisser sous la maison. Le volume central en bois flotte au-dessus du volume inférieur, tout vitré. Celui-ci se prolonge au-dessus du volume bardé de tuiles de bois, et vient le coiffer d’un étage rythmé par des fenêtres à châssis coulissants.
Pour les éléments hors sol, nous avons opté pour une ossature en bois autonome, ne prenant pas appui sur les maisons voisines. La façade est recouverte de tuiles de cèdre dont la surface prend une teinte grise. Sans revendiquer d’expression constructive, ce choix affirme plutôt dans un souci d’harmonie avec l’ensemble des constructions de la rue, dominé par des modules de brique grise.