- Uccle
- Construit
- 486 m²
ROSE
Appartements passif en CLT
- ✦ Lauréat - Bâtiment exemplaire ville de Bruxelles
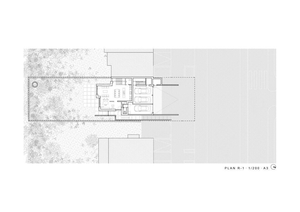
ROSE s’insère dans un tissu résidentiel dense et compose avec la déclivité de la parcelle. Le projet réunit trois appartements passifs, posés sur un socle enterré qui accueille les caves et garages voitures/vélos. La structure en CLT porteur organise des plateaux compacts, faciles à desservir et à isoler.
La composition des façades s’appuie sur un contraste clair entre un front de rue plutôt fermé et des façades arrière largement ouvertes vers le jardin. Des baies généreuses, protégées par des screens, apportent lumière et vues tout en contrôlant les apports solaires. Les espaces servants se regroupent autour d’une gaine centrale, ce qui rationalise les réseaux et clarifie les circulations. L’enveloppe se prolonge en limite de rue par une série de tampons qui filtrent le rapport entre les logements, l’espace public et les bâtiments voisins.