- Theux
- Construit
- 1650 m²
THEUX
Démolition et reconstruction d’une caserne de pompiers pour le service régional de Theux.
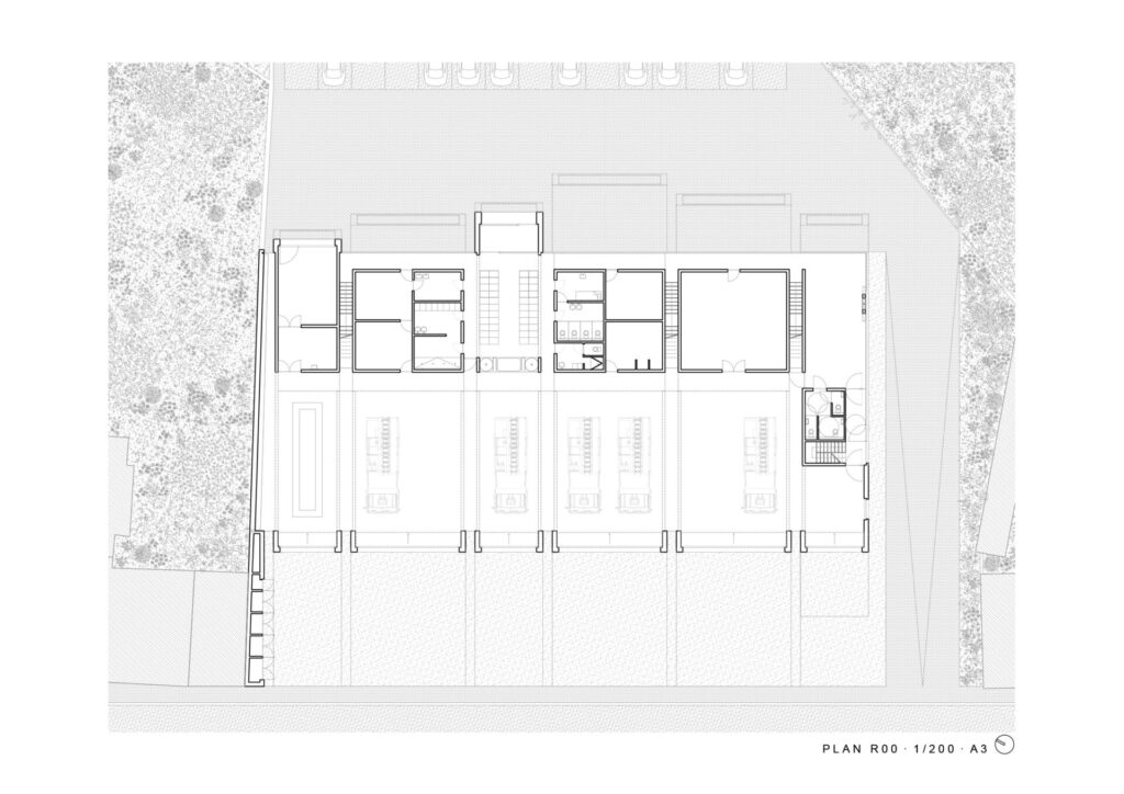
La nouvelle caserne de Theux pour le service régional d’incendie combine fonctionnalité et symbolique pour la communauté, en maintenant son emplacement original au cœur de la ville pour préserver son rôle social. Le bâtiment, conçu pour intégrer des opérations modernes et le paysage local, vise à inspirer et symboliser l’engagement des pompiers volontaires.
Le complexe comprend un garage pour neuf camions, des équipements, un atelier, et des espaces pour cinquante pompiers, incluant vestiaires, sanitaires, une salle de classe et un espace sportif. Les bureaux administratifs et un centre de sécurité sont également inclus. Un parking offre des places pour les volontaires et les visiteurs.
Les vestiaires sont optimisés pour un accès rapide aux camions de pompiers, avec des installations et services accessibles depuis le garage et le parking. L’organisation du bâtiment facilite l’accès rapide et direct aux zones opérationnelles et administratives, consolidant l’efficacité des interventions et des opérations quotidiennes.