- Ooigem
- Construit
- 2580 m²
CROP’S
Site Agro-Industriel de Crop's
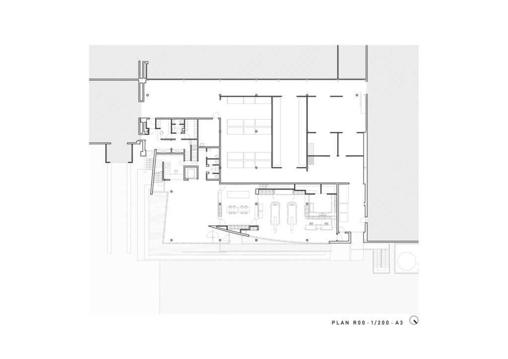
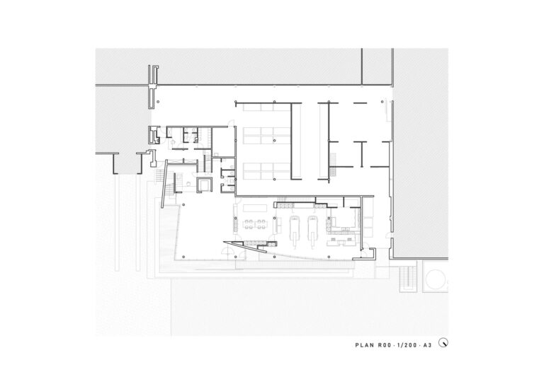
L’entreprise Crop’s, fabricant d’aliments surgelés, souhaitait se doter d’un nouvel immeuble pour abriter ses bureaux et ses fonctions annexes. Situé entre des bâtiments industriels dédiés à la fabrication et au stockage des produits surgelés, le nouveau bâtiment a été conçu en prenant en compte les caractéristiques particulières du site.
Celui-ci fait face à un paysage plat traversé par un canal, qui trace une ligne de force attirant le regard. La présence de l’eau apporte de la luminosité grâce aux reflets et évoque le mouvement ainsi que le temps par le passage des bateaux. La métaphore du bateau reflète cette interaction et rappelle les origines de l’entreprise, liées à la pêche.
Le bâtiment se démarque du sol, flottant comme un bateau sur l’eau. Pour accentuer cette sensation de légèreté, les volumes ont été sculptés en milliers de feuilles, mettant en valeur la vue et la lumière. Les visiteurs doivent emprunter une passerelle étroite pour entrer, traversant une rupture entre matériaux et surfaces. La scénographie favorise les rencontres et les présentations.
L’édifice représente une réponse simple, sensible et cohérente qui vise à exprimer la mémoire industrielle, le lieu et l’activité de l’entreprise.