- Mbellacadiao, région de Fatick
- Construit
- 15 ha viabilisés
ENABEL Agropole centre
Viabilisation de la plateforme régionale
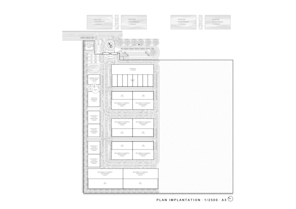
L’Agropole centre de Mbellacadiao prépare l’accueil d’une plateforme régionale dédiée aux activités agroalimentaires. La phase SEN529 concentre l’effort sur la viabilisation d’une première tranche d’environ 15 hectares, au sein d’un site d’environ 30 hectares, pour structurer les accès, les réseaux et le paysage.
L’accent est mis sur un paysage productif et climatique: plantation d’environ 8000 arbres, noues drainantes pour les eaux pluviales, traitement écologique des eaux usées et maximisation des surfaces perméables. Les espaces publics intègrent places, voiries douces et pistes cyclables, tandis qu’une centrale photovoltaïque et la désalinisation de l’eau complètent l’infrastructure. Cette première phase, à haute intensité de main d’œuvre locale, prépare l’arrivée des bâtiments de l’Agropole développés dans la phase suivante (SEN10033).